LUKSUZNI STANOVI NOVOGRADNJA ZAGREB LANGOV TRG-NOVAKOVA

ID: 4112-1 Stan u novogradnji, prodaja
Površina: 116,16 m²
Soba: 4
Kupaonica: 2
  • Ekskluzivna lokacija
1.045.440,00 € 7.876.867,68 kn

Osnovni podaci

Grad:Zagreb

Uža lokacija:Ribnjak

Cijena/m²:9.000,00 €

Površina:116,16 m²

Soba:4

Kupaonica:2

Katnost:dru/5

Grijanje:podno grijanje, Toplinska pumpa

Stanje:U izgradnji

Energetski certifikat:A

Opis

LUKSUZNI STAN NOVOGRADNJA ZAGREB LANGOV TRG-NOVAKOVA ULICA: Luksuzni stan u stambeno-poslovnoj zgradi u izgradnji, na uglu Langova trga i Novakove ulice. Planirano je ukupno 21 stambena jedinica i jedan poslovni prostor u prizemlju zgrade.

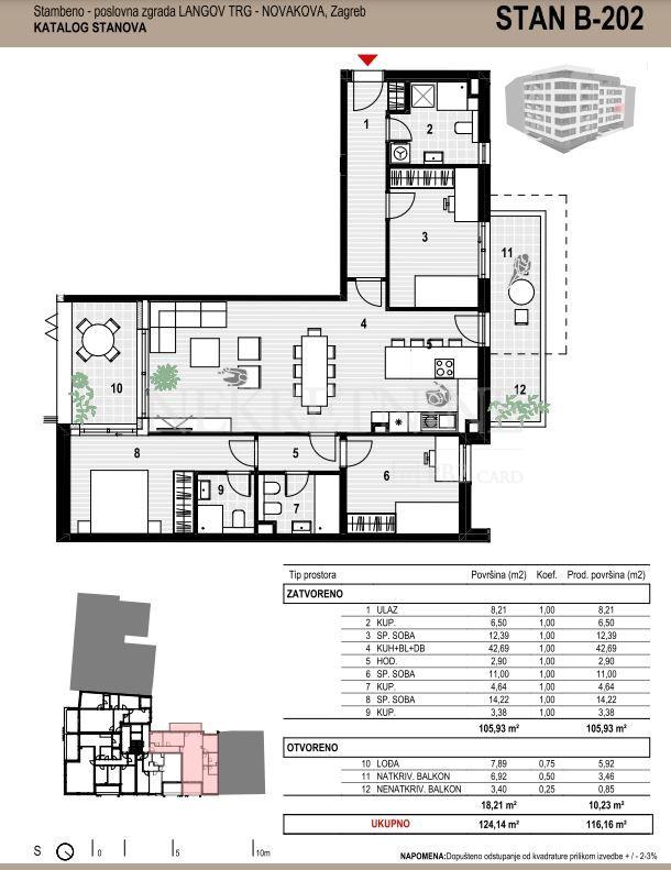
Stan je smješten na 2. katu zgrade,oznake B 202, orijentacije JUG-SJEVER. Površina stana iznosi 116,16 m2, a sastoji se od DB sa kuhinjom, tri spavaće sobe, dvije kupaonice, lođe, natkrivenog i nenatkrivenog balkona, ulaznog prostora i hodnika. Stanu pripada  GPM na -2 etaži, oznake 8,površine 14,45 m2, spremište 3,52 m2 tlocrtne površine u podrumu građevine.

Zgrada je funkcionalno podjeljana u tri dijela: podrum, prizemlje i katovi.

U podrumu su smještena 38 GPM-a, spremišta i tehničke prostorije.

Zgrada je podjeljena na poluetaže, a na svakoj etaži su su dva ili tri stana.

U izradnji se koriste visokokvaliteni materijali, sanitarije, pločice, parketi, unutarnja i vanjska stolarija, fasada  i dr. Svi stanovi imaju  velike staklene stjene sa aluminijskim griljama, sve 1. klase.

Sustav grijanja je putem dizalica topline, a hlađenje se vrši putem individualnih dizalica- Multisplit sustavi.

Zgrada je opremljena video sustavom, antenskim sustavom, sustavom zaštite od od udara munje, sustavom detekcije CO u garaži, te sustavom vatro dojave u cjeloj zgradi.

Blizina svih javnih sadržaja i centra grada Zagreba, blizina Trg Bana Josipa Jelačića.

Jedinstvena lokacija u samom centru Zagreba, 

Rok završetka gradnje: 12. mjesec 2025. godine.

CIJENA: 

STAN:            1.045.440 Eura

SPREMIŠTE:        10.560 Eura

GPM:                  43.380 Eura

______________________________

UKUPNO:        1.099.380 Eura

 

Ostali podaci

Ostali podaci

  • Novogradnja
  • Useljivo od: 10.12.2025
  • Orijentacija: Sjever,Jug
  • Br. spavaćih soba: 3
  • Prijevoz: Autobus+Tramvaj
  • Godina izgradnje: 2025
  • Grijanje: podno grijanje, Toplinska pumpa

Opis nekretnine

  • Blizina centra
  • Blizina dućana
  • Blizina škole
  • Centar mjesta/grada
  • Ekskluzivan interijer

Prostorije (objekti) uz nekretninu

  • Parking

Dozvole

  • Građevinska dozvola
  • Lokacijska dozvola

Tlocrt

Opis mjesta

Četvrt obuhvaća zapravo prva naselja iz kojih se razvio Zagreb. To su brežuljci Gradec i Kaptol, te razni predjeli na obroncima Medvednice – Šalata i Tuškanac.
Više
Broj pregledavanja: 2646

Slične nekretnine

Stan Zagreb, Centar

Površina: 114,92 m²

Soba: 3.5

375.000,00 €

Fiksni tečaj konverzije: 1 EUR = 7.53450 kn

Moji favoriti

Moguće je dodati najviše 12 nakretnina u Favorite, ako želite dodati i ovu nekretninu obrišite neku od već odabranih.

Moji favoriti

Jeste li sigurni da želite ukloniti sve označene nekretnine iz favorita?